Sign up to get new listings emailed daily! JOIN SIGN IN
Deb Rees
REALTOR®
VCard Icon 

Cherry Lane, Unit Lot 2, York, ME 03909

$1,200,000
  • Main Photo

12 Total Photos [Click to View All]

New to the Market Active
BEDS3 BATHS2 full 1 partial SQUARE FEET2,380 MLS#5084009
STATUSActive PROPERTY TYPEResidential - Single Family SUBDIVISIONHarbor Woods SCHOOLYork Central

Listing Courtesy of: Green Company
Agency Phone: 603-964-7572
Associate Name: Susan Green
IDX logo


Property Description

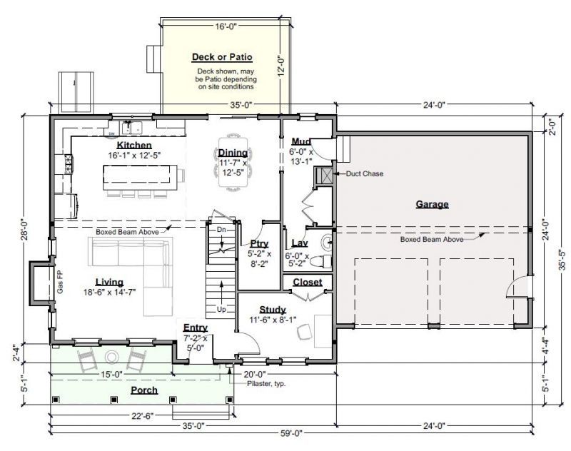
NEW CONSTRUCTION: Introducing Harbor Woods, York's newest community of seven new homes now beginning construction. Nestled amongst conservation land, and minutes to York Harbor and Kittery Point. Harbor Woods is the perfect location to enjoy all that Coastal Maine living provides.This thoughtfully designed Scotch Fox home style offers three bedrooms, home office, and spacious finished bonus room. The living space is centered around the kitchen, with island seating area, open dining and living room centered around a cozy gas fireplace. First floor study provides a beautiful sunny work space. Walk-in pantry with plenty of storage. Up the hardwood stairs is a primary suite with walk-in closet, and private bath with tile shower, linen storage and double vanity. Two additional bedrooms, full bath, and laundry on this floor. Finished "bonus " room over garage has endless options - family room, guest bedroom, hobby space! Enjoy morning coffee on the front farmer's porch or back deck/patio. Choose your homesite at Harbor Woods and customize this home!

Cherry Lane, Unit Lot 2 | MLS# 5084009

This single family home located at Cherry Lane, Unit Lot 2, York, ME 03909 is currently listed for sale with an asking price of $1,200,000. This property was built in 2026 and has 3 bedrooms and 2 full and 1 partial baths with 2380 sq. ft. Cherry Lane, Unit Lot 2 is located in the Harbor Woods subdivision within the York Central school district. Search Harbor Woods real estate on debrees.masiellogrouprealestate.com today.

Property Features

Property Type: Residential - Single Family
Basement: Concrete, Concrete Floor, Full, Interior Stairs, Storage Space, Unfinished, Interior Access, Exterior Access, Basement Stairs
Basement: Yes
Cooling: Central AC
Garage: 2
Heating: Propane, Forced Air, Hot Air, Multi Zone
Home Style: Craftsman
Roof Type: Architectural Shingle
Stories: 2.5
Year Built: 2026

Amenities

Ceiling Fan
Dining Area
Gas Fireplace
1 Fireplace
Kitchen Island
Kitchen/Dining
Kitchen/Living
Laundry Hook-ups
Enrgy Rtd Lite Fixture(s)
LED Lighting
Primary BR w/ BA
Indoor Storage
Walk-in Closet
Walk-in Pantry
Programmable Thermostat
2nd Floor Laundry
Deck
ENERGY STAR Qual Doors
Porch
Covered Porch
Window Screens
Double Pane Window(s)
ENERGY STAR Qual Windows
Low E Window(s)

Feature Descriptions

Accessibility: 1st Floor 1/2 Bathroom, 1st Floor Hrd Surfce Flr, Access to Common Areas, Paved Parking
Amenities: Landscaping, Common Acreage, Other, Trash Removal
Appliances: Dishwasher, ENERGY STAR Qual Dishwshr, Range Hood, Microwave, Gas Range, Refrigerator, ENERGY STAR Qual Fridge, Gas Stove, Propane Water Heater, On Demand Water Heater, Tankless Water Heater, Water Heater
Baths 1/2: 1
Baths 3/4: 1
Baths Full: 1
Construction: Vinyl Siding
Construction Status: New Construction
Driveway: Paved
Electric: 200+ Amp Service, Underground
Equipment: CO Detector, Irrigation System, Smoke Detector, HW/Batt Smoke Detector, Gas Stove
Exterior: Vinyl Siding
Fee: $278/Monthly
Fee 2: $1000/One-Time
Flood Zone: No
Flooring: Carpet, Hardwood, Tile
Foundation: Concrete, Poured Concrete
Lot: Alternative Lots Avail, Condo Development, Landscaped, Subdivision, Abuts Conservation, Neighborhood
Number of Rooms: 10
Roads: Association, Paved, Private Road, Shared, Easement
Sewer: Private, Septic
Sq. Ft. Above Grade Finished: 2380
Sq. Ft. Total Finished: 2380
Total Stories: 2.5
Water: Drilled Well, Private
Zoning: residential

Room Sizes

Living Room: 18 x 15 +/- Level - 1
Kitchen: 16 x 12 +/- Level - 1
Dining Room: 12 x 12 +/- Level - 1
Mudroom: 6 x 13 +/- Level - 1
Office/Study: 12 x 8 +/- Level - 1
Primary Bedroom: 14 x 15 +/- Level - 2
Bedroom: 12 x 14 +/- Level - 2
Bedroom: 12 x 9 +/- plus 6 x 6 nook Level - 2
Laundry Room: 6 x 5 +/- Level - 2
Bonus Room: 17 x17 +/- Level - 2

Local Schools

School District: York Central

Listed By / Shown By

Listed By

Agency Name: Green Company
Agency Phone: 603-964-7572
Agent Name: Susan Green

IDX logo

TOUR THIS HOME

Choose a date and time to see Cherry Lane, Unit Lot 2, York, ME 03909.
I will get in touch with you shortly.

Request a Showing
Choose your video chat app
  • Saturday April 18
  • Sunday April 19
  • Monday April 20
  • Tuesday April 21
  • Wednesday April 22
  • Thursday April 23
  • Friday April 24
  • Saturday April 25
  • Sunday April 26
  • Monday April 27
  • Tuesday April 28
  • Wednesday April 29
  • Thursday April 30
  • Friday May 1
  • Saturday May 2
  • 7:00 AM
  • 7:30 AM
  • 8:00 AM
  • 8:30 AM
  • 9:00 AM
  • 9:30 AM
  • 10:00 AM
  • 10:30 AM
  • 11:00 AM
  • 11:30 AM
  • 12:00 PM
  • 12:30 PM
  • 1:00 PM
  • 1:30 PM
  • 2:00 PM
  • 2:30 PM
  • 3:00 PM
  • 3:30 PM
  • 4:00 PM
  • 4:30 PM
  • 5:00 PM
  • 5:30 PM
  • 6:00 PM
  • 6:30 PM
  • 7:00 PM
  • 7:30 PM
  • 8:00 PM
  • 8:30 PM
  • 9:00 PM
Preferred Communication Method

Estimate Your Payment

Estimated Payment

$ 3,020.68 per month $2,670.68 Principal & Interest $0.00 Property Tax (data not provided by mls) $350.00 Homeowner's Insurance

Change Payment Information

%
years/fixed
yearly
yearly (est.)
(Payments are an estimate and may vary by lender)
Disclaimer: All information deemed reliable but not guaranteed. All properties are subject to prior sale, change or withdrawal. Neither listing broker(s) or information provider(s) shall be responsible for any typographical errors, misinformation, misprints and shall be held totally harmless. Listing(s) information is provided for consumers personal, non-commercial use and may not be used for any purpose other than to identify prospective properties consumers may be interested in purchasing. Information on this site was last updated 04/17/2026. The listing information on this page last changed on 04/17/2026. The data relating to real estate for sale on this website comes in part from the Internet Data Exchange program of Delta Media Group MLS (last updated Fri 04/17/2026 5:02:47 AM EST) or MLSPIN MLS (last updated Thu 04/16/2026 11:38:34 PM EST) or Prime MLS (last updated Thu 04/16/2026 11:33:24 PM EST) or MREIS (last updated Fri 04/17/2026 2:05:22 AM EST). Real estate listings held by brokerage firms other than Better Homes and Gardens Real Estate The Masiello Group may be marked with the Internet Data Exchange logo and detailed information about those properties will include the name of the listing broker(s) when required by the MLS. All rights reserved.

Listing data compilation and photo(s) copyright © 2026 PrimeMLS, Inc. All rights reserved. This information is deemed reliable, but not guaranteed. The data relating to real estate displayed on this display comes in part from the IDX Program of PrimeMLS. The information being provided is for consumers’ personal, non-commercial use and may not be used for any purpose other than to identify prospective properties consumers may be interested in purchasing. Data Last Updated 2026-04-16 23:33:24

Privacy Policy / DMCA Notice / ADA Accessibility

Agency License Information: Better Homes and Gardens® and the Better Homes and Gardens Real Estate Logo are registered service marks owned by Meredith Corporation and licensed to Better Homes and Gardens Real Estate LLC. The Masiello Group Limited fully supports the principles of the Fair Housing Act and the Equal Opportunity Act. Each franchise is independently owned and operated. Any services or products provided by independently owned and operated franchisees are not provided by, affiliated with or related to Better Homes and Gardens Real Estate LLC nor any of its affiliated companies.


Login to My Homefinder

Pixel